Производство светопрозрачных перегородок
ОСНОВНАЯ ИНФОРМАЦИЯ:
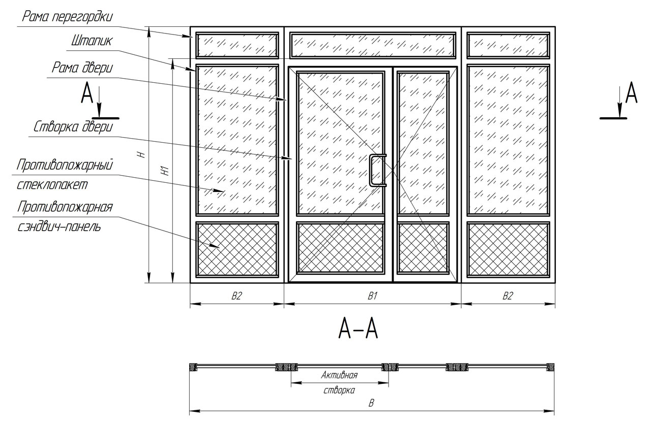
Класс огнестойкости: ЕIW15, ЕIW30, ЕIW45, ЕIW60, ЕIW90Цвет: муар, шагрень, глянец, матовый любой цвет по шкале RAL
Срок изготовления: от 7 дней
Гарантия: 24 месяца
Работаем по всей территории России
ОСОБЕННОСТИ:
Штапики стыкуются под 45 градусовЛегкая замена стекла
Простота сборки
Высокая скорость монтажа
Двери защищены от провисания
Конфигурация двери: с порогом, без порога, с автоматически выпадающим порогом
Высота и ширина: неограничена
Цена: от 10000 руб. за 1 м.кв.
Светопрозрачные противопожарные перегородки от ООО ПФ "ИНОКС Профиль" – это передовое решение в области пожарной безопасности, сочетающее функциональность, надежность и эстетику. Наши конструкции обеспечивают эффективную защиту жизни людей и сохранность имущества в случае возникновения пожара.
Основное назначение:
- Предотвращение распространения огня между помещениями
- Блокировка опасных факторов пожара (дым, токсичные газы)
- Создание безопасных путей эвакуации
- Защита конструктивных элементов здания от разрушения
Области применения:
- Общественные здания и торговые центры
- Офисные помещения и бизнес-центры
- Жилые комплексы
- Производственные объекты
- Складские помещения
- Образовательные учреждения
- Медицинские центры
Технологические преимущества:
- Использование инновационной системы стальных комбинированных профилей "Inprof72"
- Высокотехнологичное остекление с применением огнестойких стеклопакетов
- Интеграция противопожарного стекла собственной марки IBF
- Возможность установки как однокамерных, так и двухкамерных стеклопакетов
Ключевые характеристики:
- Заданный предел огнестойкости
- Надежная защита от дыма и высоких температур
- Устойчивость к механическим воздействиям
- Долговечность эксплуатации
- Современный дизайн
- Светопрозрачность конструкции
Соответствие стандартам: Все противопожарные перегородки производятся в строгом соответствии с действующими нормами пожарной безопасности и имеют необходимые сертификаты качества.
Индивидуальный подход: Наши специалисты помогут подобрать оптимальное решение с учетом специфики вашего объекта, требований безопасности и архитектурных особенностей помещения.
|
Оформите заявку на сайте, мы свяжемся с вами в ближайшее время и ответим на все интересующие вопросы.
|
Заказать проект
|

